Aller au contenu
Agence
Équipe
Publications
Expositions
Prix
Formations
Projets
Galerie
Liste
Carte
Hors les murs
Conférences / Invitations
Enseignement
Contact
Bagard Luron Architectes Identite Picto Instagram
Bagard Luron Architectes Identite Picto Facebook
Bagard Luron Architectes Identite Picto Linkedin
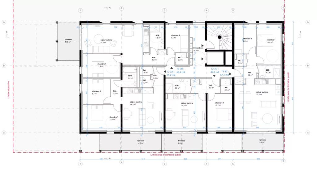
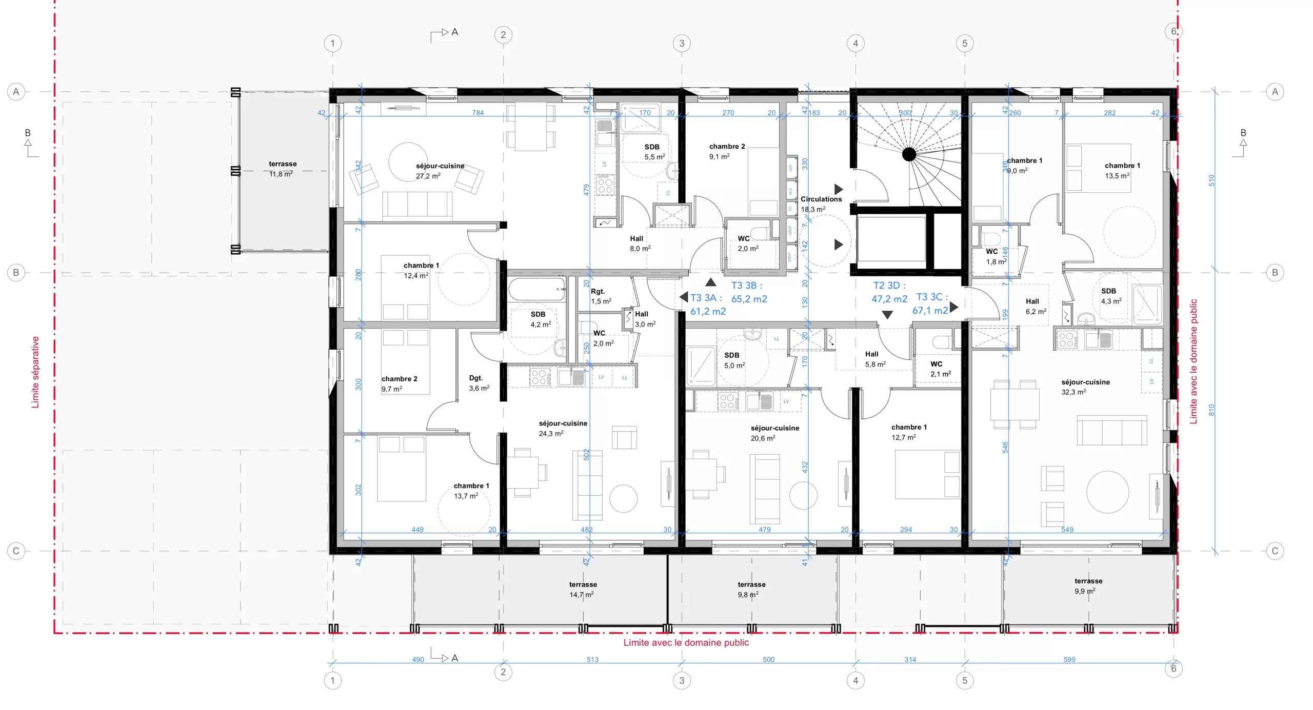
Construction de 20 logements collectifs / plateau de Haye
2019
Habitat
Nancy
Béton
,
Bois
En cours
Construction de 20 logements collectifs / plateau de Haye
Nancy
Construction de 20 logements collectifs en accession
Maître d’ouvrage
la Solorem
Surface
1360
m
2
Montant des travaux
2 244 000
€ HT
Année
2019
Procédures
Procédure adaptée
Missions
Base + PVTM
Performances / labels
RT2012
Architecte associé
/
Partenaires
Etico (structure, VRD) Solares Bauen (fluides) L&N Ingénierie (électricité) Paysages d'ici et d'ailleurs
Programmiste / AMO
BRE Immobilier
Contrôle technique
Veritas Construction
SPS
Dekra
Crédits photos
Prix et distinction
Voir plus de photos
Menu
Accueil
Agence
Équipe
Publications
Formations
Projets
Hors les murs
conférences
Enseignement
Contact
Projets
Galerie
Carte
Liste
Galerie
Carte
Liste