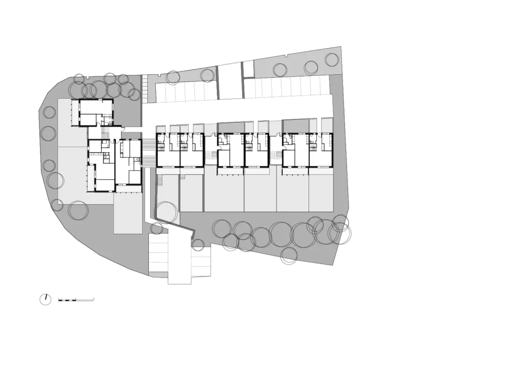
Construction de 20 logements collectifs

2015 - 2019
Pompey
Béton, Bois
Réalisé

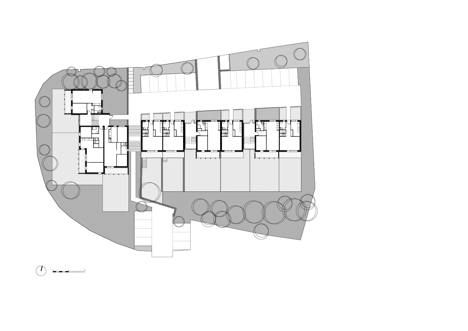
Construction de 20 logements collectifs

Pompey

Construction de 20 logements collectifs sociaux dans la pente. Parking et aménagements extérieurs

Meurthe-et-Moselle Habitat (mmH)
1540 m2
2 200 000 € HT
2015 - 2019