Construction de 39 logements / quartier Saint-Jean

2022 - 2026
Bar-le-Duc
Béton, Bois
En cours

Construction de 39 logements / quartier Saint-Jean

Bar-le-Duc

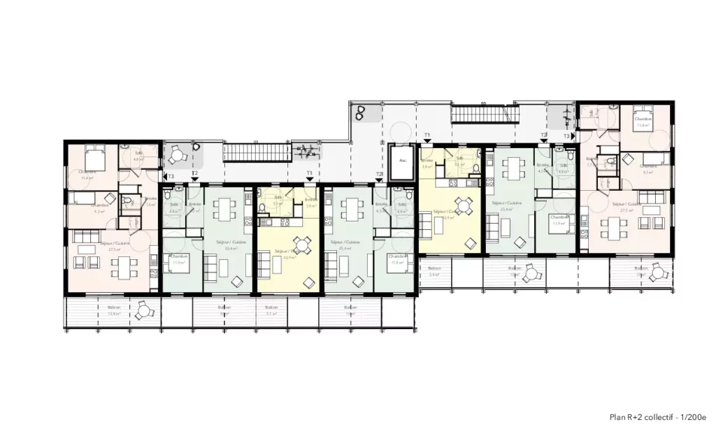
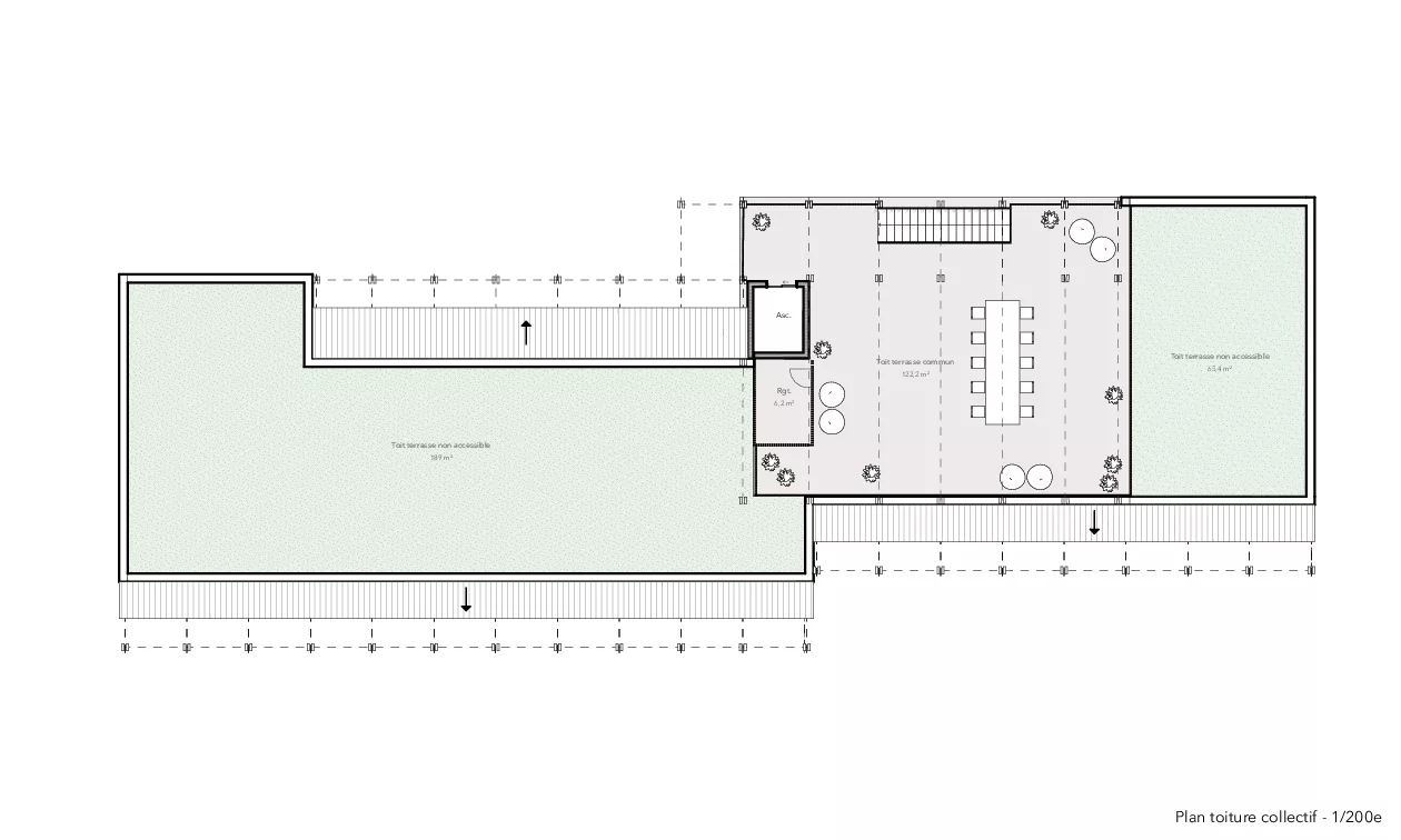
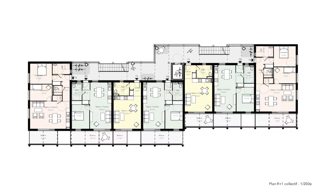
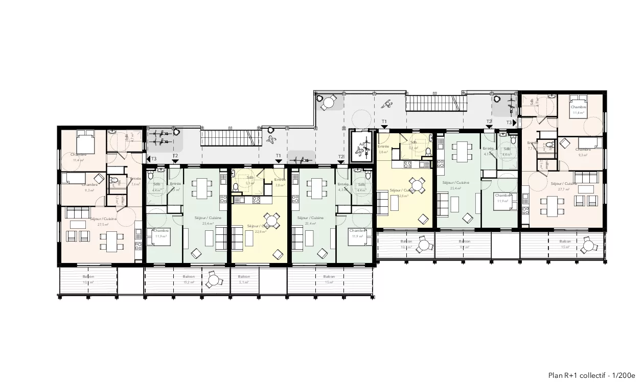
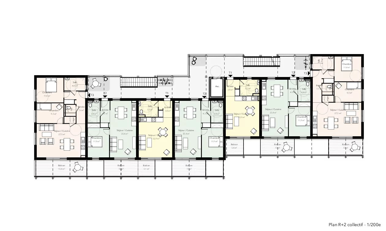
Construction de 39 logements sociaux : bâtiment collectif de 21 logements, 9 logements intermédiaires, 10 maisons individuelles en bande

OPH de la Meuse
2275 m2
6 100 000 € HT
2022 - 2026