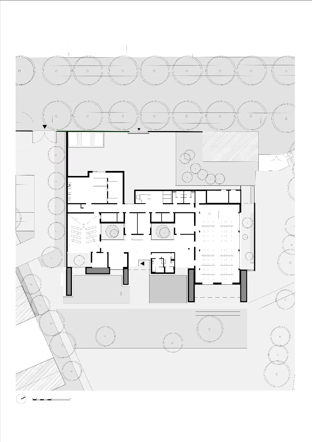
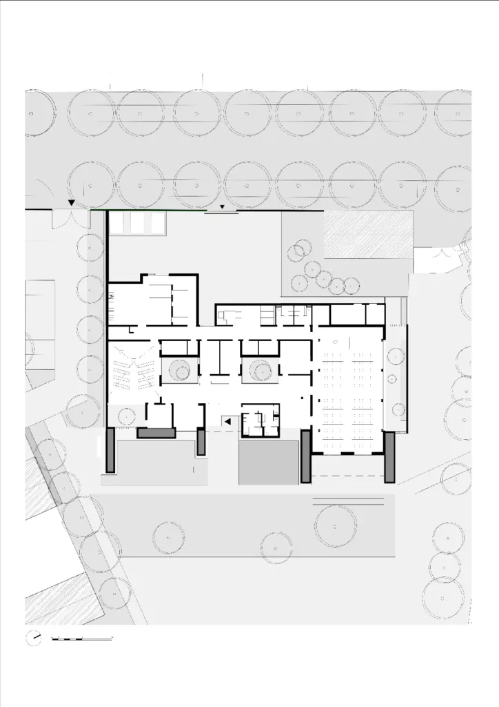
Crématorium d’agglomération / cimetière du Sud

2014 - 2018
Vandeouvre-lès-Nancy
Béton, Bois, Pierre
Réalisé

Crématorium d’agglomération / cimetière du Sud

Vandeouvre-lès-Nancy

Construction d’un crématorium comprenant 2 salles de cérémonies, des espaces d’accueil, une salle de convivialité, des locaux techniques et de process. Aménagement parking et espaces paysagers. Travaux avec maintien de l’ancien crématorium, puis transfert d’activité et démolition de ce dernier

SEM CRELOR
1155 m2
3 620 000 € HT
2014 - 2018