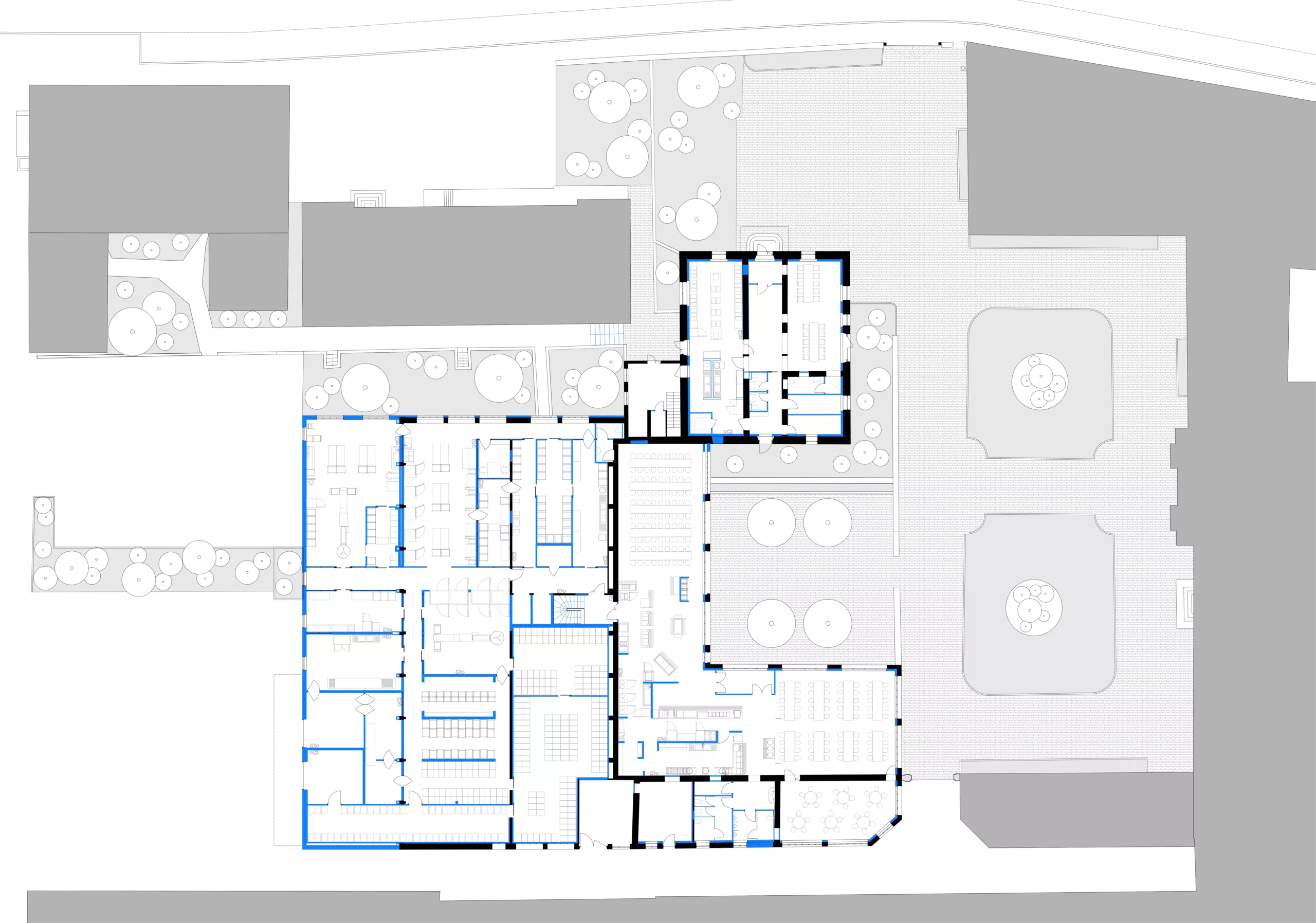
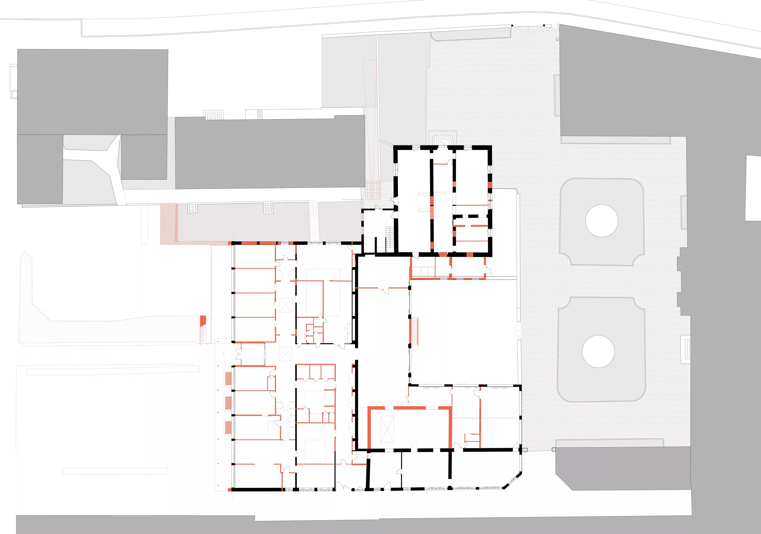
Cuisine centrale

2022
Flavigny-sur-Moselle
Béton, Métal, Réemploi
En cours

Cuisine centrale

Flavigny-sur-Moselle

Restructuration de bâtiments pour la construction d’une cuisine centrale, d’un restaurant du personnel et IME, et d’un restaurant d’application. Projet abandonné par le maître d’ouvrage

OHS Lorraine
2210 m2
6 800 000 € HT
2022