Ecole maternelle, accueil périscolaire et médiathèque

2010 - 2014
Pulligny
Béton, Bois
Réalisé

Ecole maternelle, accueil périscolaire et médiathèque

Pulligny

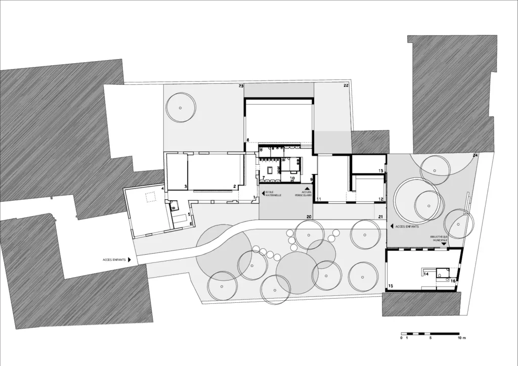
En cœur de bourg, restructuration de l’école maternelle et construction d’un accueil périscolaire. Aménagement cour de récréation, jardin pédagogique et espaces paysagers. Construction d’une médiathèque et d’une placette publique mutualisée pour les 2 équipements.

Commune de Pulligny
510 m2
1 126 000 € HT
2010 - 2014