Groupe scolaire de la Moselle Sauvage

2022
Roville-devant-Bayon
Béton, Bois
Concours

Groupe scolaire de la Moselle Sauvage

Roville-devant-Bayon

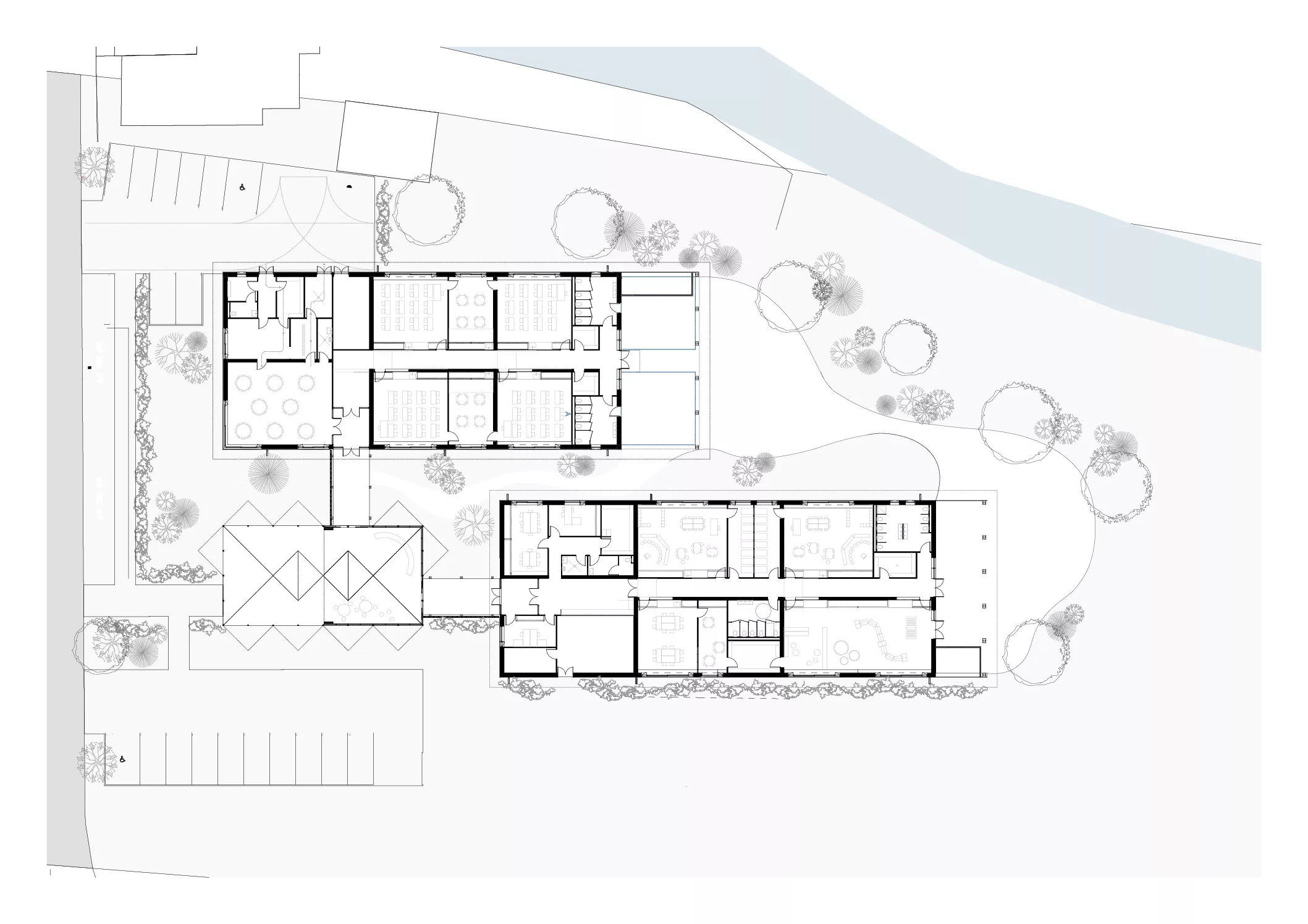
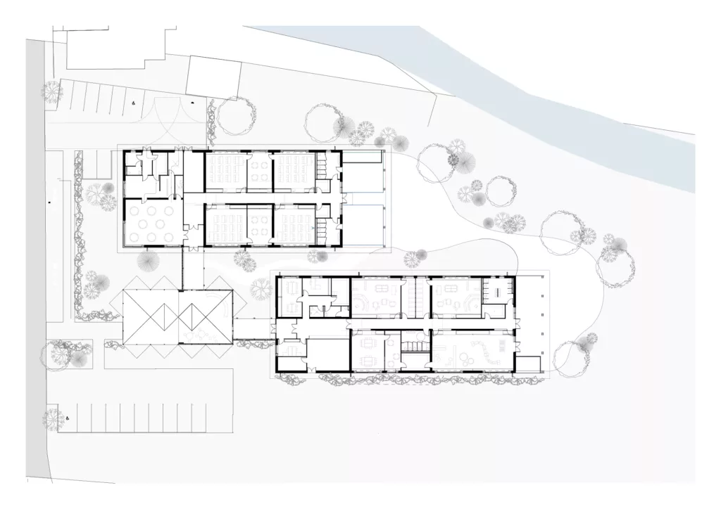
Construction d’un groupe scolaire comprenant écoles maternelle et élémentaire, salle multi-activités, salle de vie, périscolaire, salle de restauration, pôle administratif, bureau du SIVU, préaux et cour paysagée. Le projet comprend l’intégration de la restructuration du bâtiment Mille-Club présent sur le site

SIVU de la Haute-Moselle
1200 m2
2 400 000 € HT
2022