Maison communale intergénérationnelle

2017 - 2021
Roussy-le-Village
Bois
Réalisé

Maison communale intergénérationnelle

Roussy-le-Village

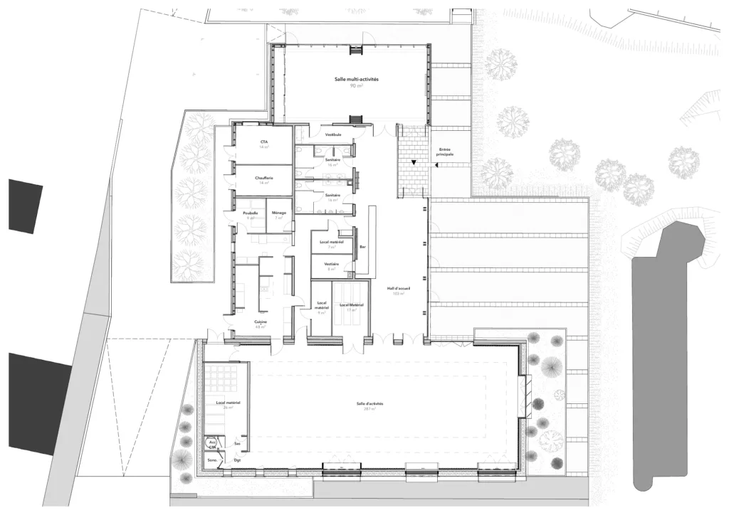
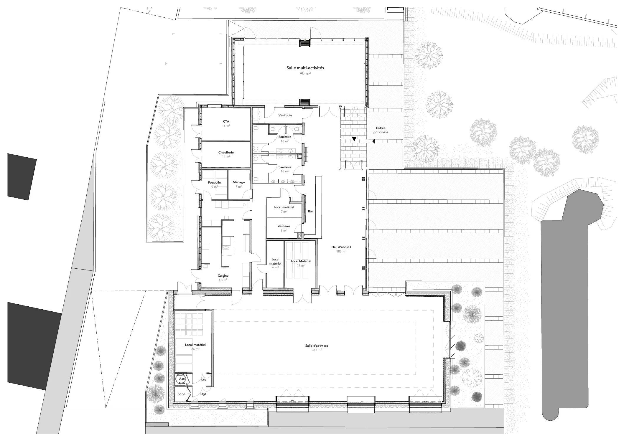
Restructuration et extension d’une ancienne grange en maison associative intergénérationnelle. Mise en valeur du patrimoine et de ses qualités spaciales pour la grande salle multifonctionnelle. Extension bois comprenant salle multi-activités divisible en deux parties, cuisine, hall, locaux de service. Aménagements extérieurs et parking adaptés à la zone inondable.

Commune de Roussy-le-Village
717 m2
2 070 000 € HT
2017 - 2021