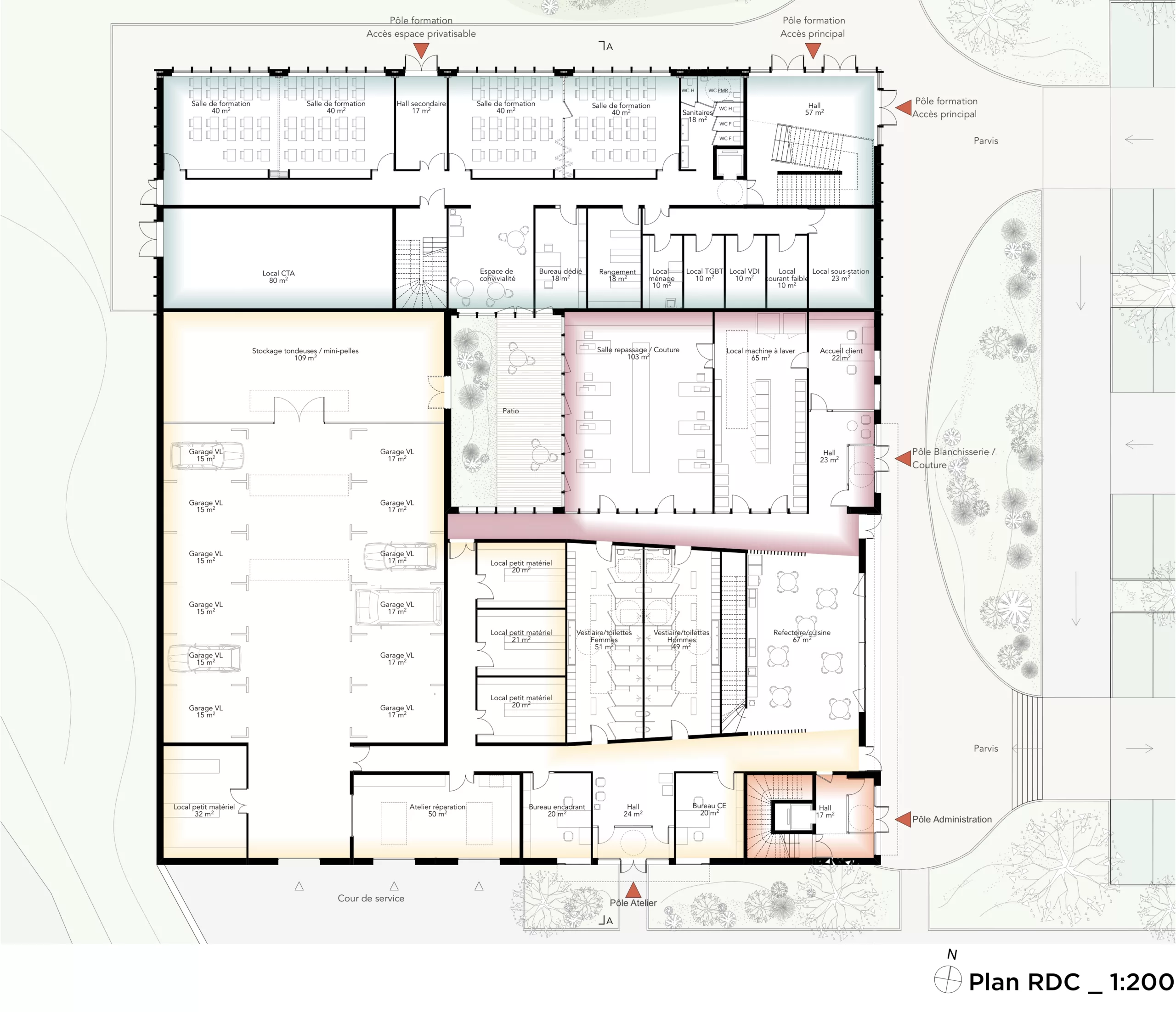
Pôle formation, ateliers et régie communale

2020
Behren-lès-Forbach
Béton, Bois
Concours

Pôle formation, ateliers et régie communale

Behren-lès-Forbach

Construction d’un bâtiment avec 2 entités : une régie communale (ateliers, laverie/blanchisserie, vestiaires, bureaux, stockage, garages, refectoire, administration) et un pôle de formation (20 salles de formations, bureaux, caféteria, salle de réunions, halle et sanitaires)

Ville de Behren-les-Forbach
2777 m2
5 120 000 € HT
2020