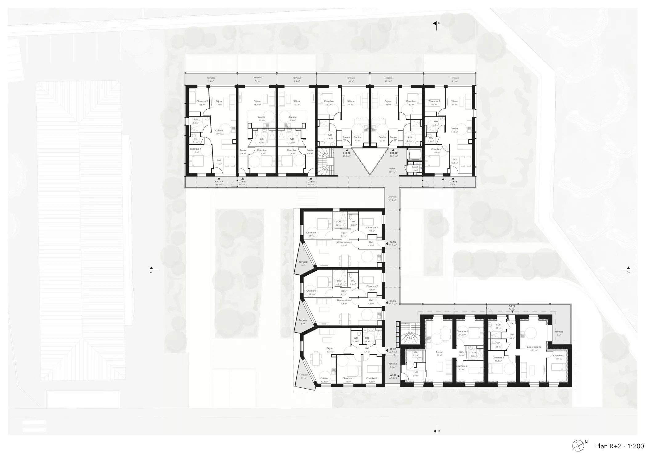
Restructuration d’un îlot / 26 logements et locaux tertiaires

2021
Remiremont
Béton, Bois, Réemploi
Concours

Restructuration d’un îlot / 26 logements et locaux tertiaires

Remiremont

Déconstruction de 4 bâtiments Construction de 26 logements et de l’agence Vosgelis avec démarche de réemploi.

Vosgelis
1910 m2
4 250 000 € HT
2021