Restructuration d’un îlot urbain avec logements et commerces

2024
Bar-le-Duc
Béton, Bois
Concours

Restructuration d’un îlot urbain avec logements et commerces

Bar-le-Duc

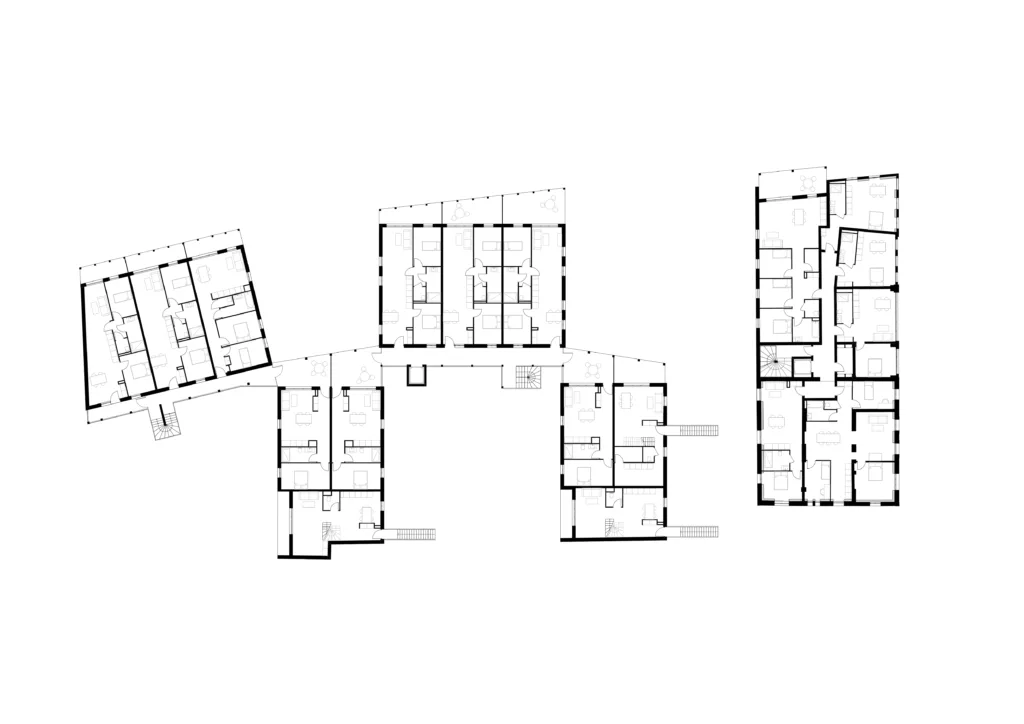
Rénovation d’un immeuble sur rue avec un commerce et 9 logements Démolition et reconstruction en cœur d’ilot pour la création d’un commerce et de 45 logements

OPH de la Meuse
3481 m2
8 840 000 € HT
2024