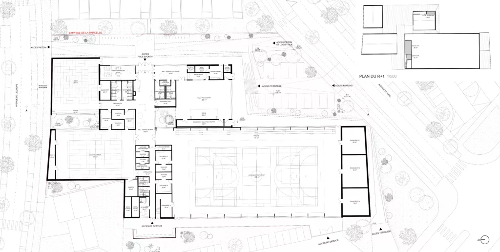
Restructuration et extension du gymnase Europe

2023 - 2026
Laxou
En cours

Restructuration et extension du gymnase Europe

Laxou

Retructuration du gymnase Europe et construction d’une salle polyvalente

Ville de Laxou
2630 m2
6 700 000 € HT
2023 - 2026