Restructuration-extension école et périscolaire / Guentrange

2019 - 2023
Thionville
Béton, Bois, Pierre, Réemploi
Réalisé

Restructuration-extension école et périscolaire / Guentrange

Thionville

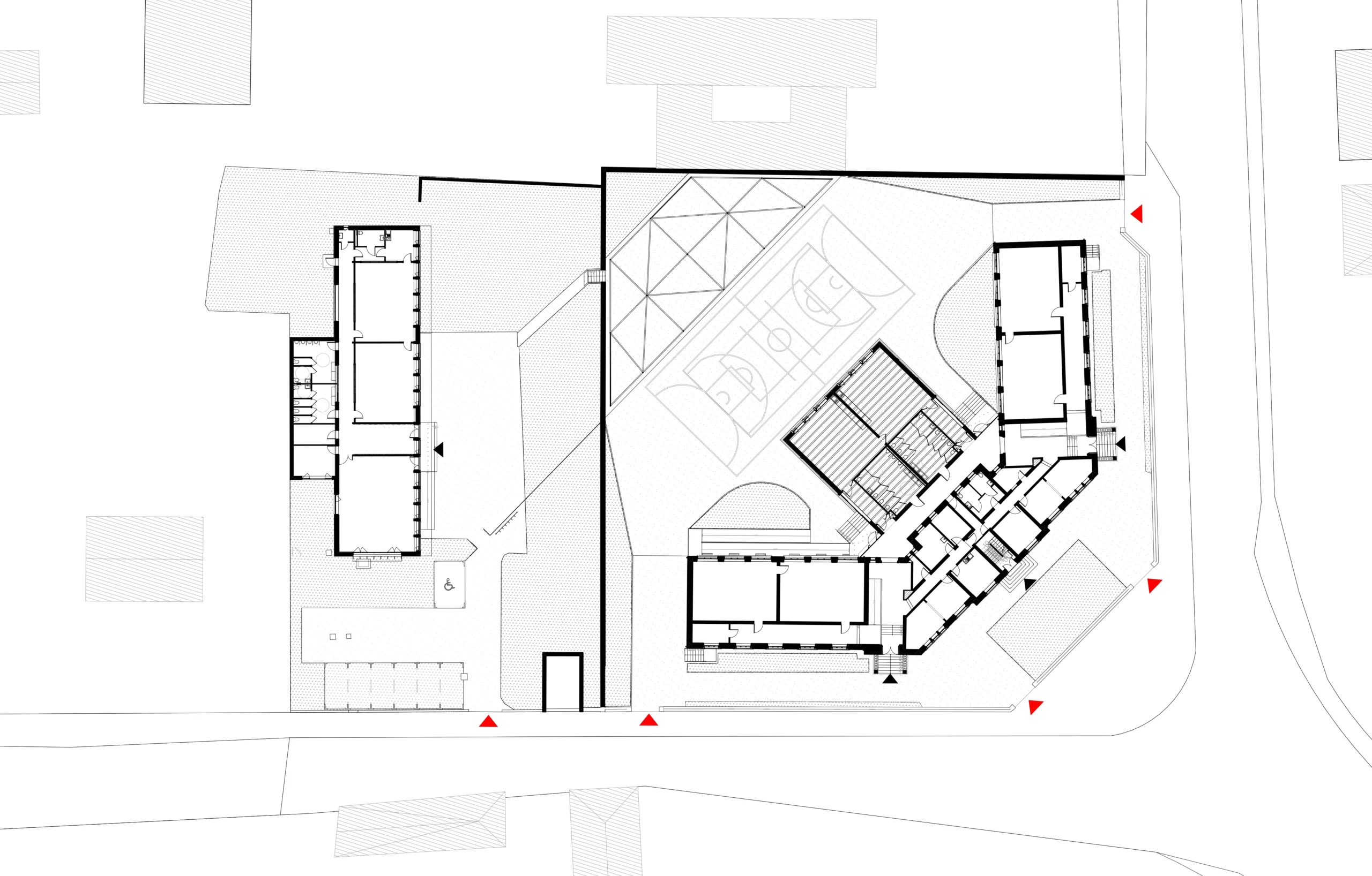
Reconfiguration du site de l’école de Guentrange avec restructuration et extension de l’école, restructuration d’un bâtiment existant en Périscolaire et salle de motricité, et construction d’un nouveau préau. Projet en site occupé

Ville de Thionville
350810300 m2
1 954 000 € HT
2019 - 2023