Construction d’une salle multi-activités, restauration, cuisine, bibliothèque communale, salle de réunion et périscolaire. Parvis, aménagement extérieur et préau construit en chênes issus de la forêt communale.
Le projet de salle multi-activités de Mandres-sur-Vair (88) répond aux besoins d’un petit équipement en milieu rural avec la nécessité de mutualiser des usages associatifs et intergénérationnels.
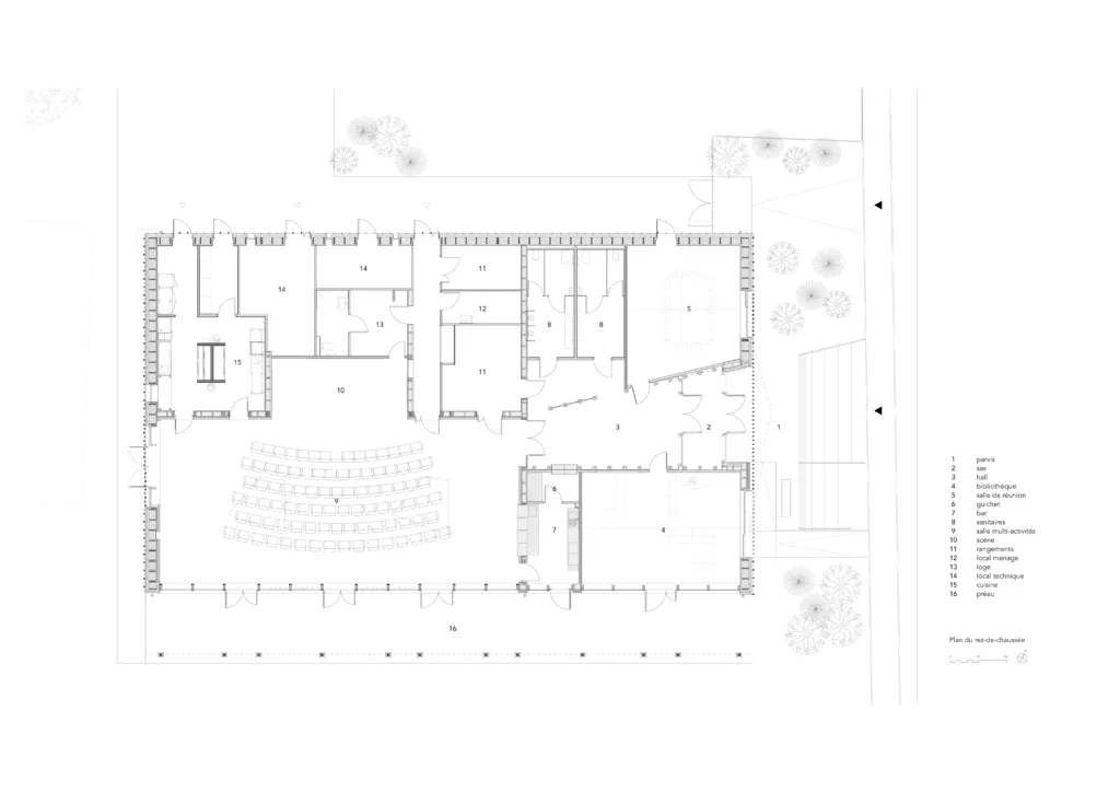
Le projet s’organise autour des trois grandes entités du programme : la salle polyvalente (170m2), une bibliothèque (50m2) et un espace de réunion (40m2).
Un hall de réception organise ces trois entités. Des espaces de services et de convivialités sont également dédiés à l’usage de la grande salle de loisirs (préau, scène, cuisine, bar, locaux rangements etc.). L’équipement permettra également l’accueil des périscolaires.
Une réflexion globale est menée sur les ressources employées pour ce projet et la pérennité des matériaux choisis. L’ensemble de la structure est en bois (à l’exception du dallage) avec la mise en œuvre de caisson bois paille pour les murs et les toitures. La couverture est réalisée en zinc et les façades en bardage bois local (douglas).
La qualité acoustique intérieure nécessaire à ce type d’équipement sera traitée avec des habillages muraux acoustiques en bois également.
La dimension environnementale de cette construction est une donnée forte portée par une volonté commune de tous les acteurs de ce projet (maître d’ouvrage, ensemble de l’équipe de maîtrise d’œuvre, bureau de contrôle, ONF) de valoriser la filière et les savoir-faire locaux.
Ainsi la filière paille s’est imposée comme une évidence dans un territoire rural. La mise en œuvre de bois locaux s’est affinée au cours de la conception en adéquation avec les ressources disponibles de la commune (ici feuillus principalement). Avec l’engagement de chacun des intervenants dans cette démarche, les chênes de la commune ont été débités par un scieur local puis fournis au charpentier pour la mise en œuvre du préau.
Le projet de salle multi-activités de Mandres-sur-Vair (88) répond aux besoins d’un petit équipement en milieu rural avec la nécessité de mutualiser des usages associatifs et intergénérationnels.
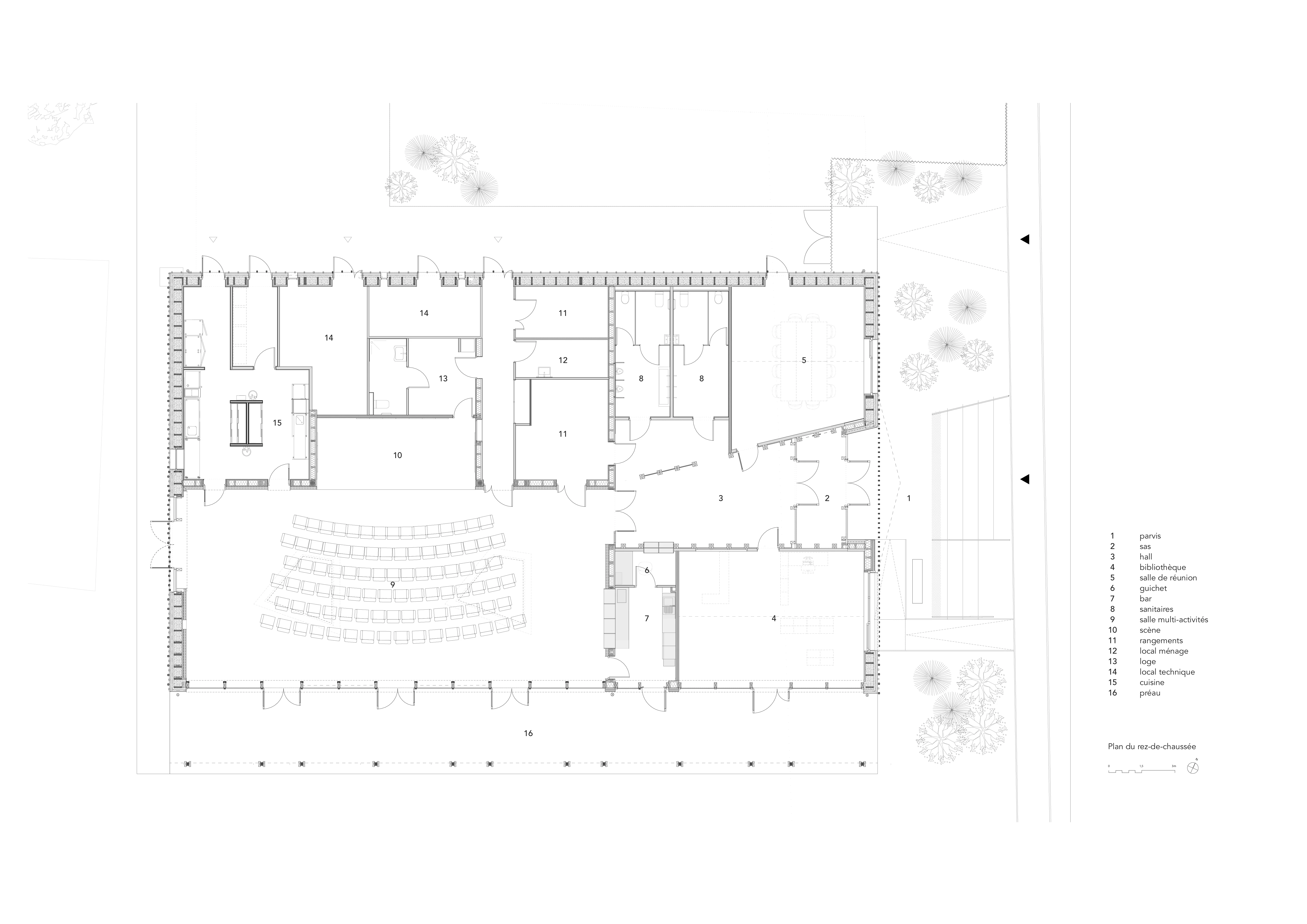
Le projet s’organise autour des trois grandes entités du programme : la salle polyvalente (170m2), une bibliothèque (50m2) et un espace de réunion (40m2).
Un hall de réception organise ces trois entités. Des espaces de services et de convivialités sont également dédiés à l’usage de la grande salle de loisirs (préau, scène, cuisine, bar, locaux rangements etc.). L’équipement permettra également l’accueil des périscolaires.
Une réflexion globale est menée sur les ressources employées pour ce projet et la pérennité des matériaux choisis. L’ensemble de la structure est en bois (à l’exception du dallage) avec la mise en œuvre de caisson bois paille pour les murs et les toitures. La couverture est réalisée en zinc et les façades en bardage bois local (douglas).
La qualité acoustique intérieure nécessaire à ce type d’équipement sera traitée avec des habillages muraux acoustiques en bois également.
La dimension environnementale de cette construction est une donnée forte portée par une volonté commune de tous les acteurs de ce projet (maître d’ouvrage, ensemble de l’équipe de maîtrise d’œuvre, bureau de contrôle, ONF) de valoriser la filière et les savoir-faire locaux.
Ainsi la filière paille s’est imposée comme une évidence dans un territoire rural. La mise en œuvre de bois locaux s’est affinée au cours de la conception en adéquation avec les ressources disponibles de la commune (ici feuillus principalement). Avec l’engagement de chacun des intervenants dans cette démarche, les chênes de la commune ont été débités par un scieur local puis fournis au charpentier pour la mise en œuvre du préau.