Surélévation maison LG

2018 - 2019
Nancy
Bois
Réalisé

Surélévation maison LG

Nancy

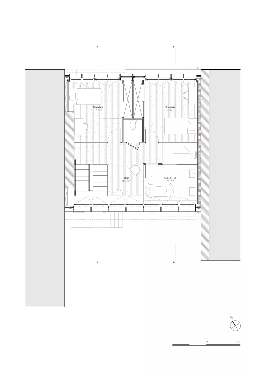
Surélévation d’une maison de ville en ossature bois et création d’un balcon en loggia en couvrant la cour d’entrée

privé
48 m2
0 € HT
2018 - 2019